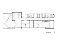
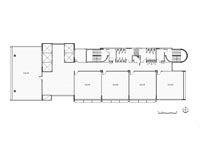
UniPaulistana
Centro Universitário Paulistano
São Paulo - SP

 

projeto: 2001
conclusão da obra: 2002
área do terreno: 8 287 m2
área construída:16 689 m2


autor: Affonso Risi
colaborador: arq. Willian T.S. Miyagui
estrutura: Modus Engenharia
eng. Joevilson dos Santos Araújo
Instalações: AGM Projetos de Engenharia
Gerenciamento: BRR Gerenciamento e Planejamento S.A.
construção: Racional Engenharia
fotos: Paulo Risi


exposições:

.5ª BIA (Bienal Internacional de Arquitetura de São Paulo)
  2003

publicações:

.Concreto – Ensino, Pesquisa e Realizações – VvAa – IBRACON - Vol 1 O concreto na arquitetura brasileira (Maria Fernanda Pereira e Ricardo dos Santos Arnaldo de Alencar)- 2005

.Projeto-Design 284 – Arco Editorial – Fernando Serapião - 2003

 


 
 
 
 
 
 
 
 
 
 
 
 
 
 
       
   
   
Desenvolvido por FuturaWeb.Org